Устойчив на корозия сферичен кран с флуорно покритие
Устойчив на корозия сферичен кран с флуорно покритие
1. Сферичните кранове с флуорна пластмасова облицовка имат изключително висока химическа стабилност и могат да се използват с всякакви други силни корозивни свойства, с изключение на "разтопени алкални метали и елементарен флуор".
2. Приемайки структура с плаваща топка с пълен отвор, вентилът може да бъде затворен без изтичане в рамките на целия диапазон на налягане, което улеснява почистването на топката и поддръжката на тръбопровода на тръбопроводната система.
3. Топката на отварящите и затварящите части и стеблото на клапана са отлети (ковани) като едно тяло, което елиминира възможността стеблото на клапана да повлияе на носещите налягане части поради промени в налягането и основно гарантира безопасността на употреба в Проектът.
4. Структурата е компактна и разумна, с най-малкото пространство на кухината в тялото на клапана, което намалява средното задържане. В допълнение, специалният процес на формоване прави уплътнителната повърхност плътна, а пръстеновидната комбинация от PTFE уплътнение с форма на рибена кост позволява на клапана да постигне нулево изтичане.
5. Конструкциите от две и три части могат да се адаптират към различни тръбопроводни системи и работни условия с различни изисквания. Сред тях сферичният кран от три части позволява отделянето на основното тяло на клапана от телата на клапаните от двете страни, което позволява бърза онлайн подмяна и поддръжка.
Принципът на работа на устойчивия на корозия облицован с флуор сферичен кран е да деблокира или блокира вентила чрез завъртане на тялото на вентила. Корпусът на вентила и вътрешната му страна са направени от флуорна пластмаса. Има характеристиките на превключвател за светлина, малък размер, надеждно запечатване, проста структура и лесна поддръжка. , широк спектър на използване и други предимства.





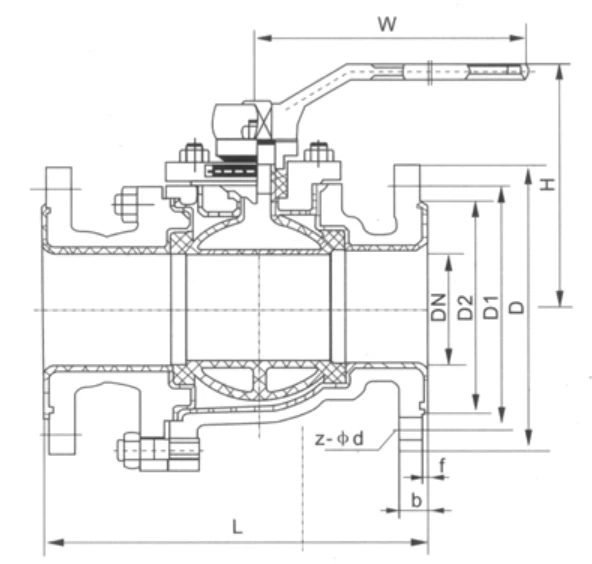
[Основни присъединителни размери на устойчив на корозия облицован с флуор сферичен кран]
| Номинален диаметър | PN1,6 (MPa) Основни габаритни размери и присъединителни размери (mm) | справка | тегло | |||||||
| DN | L | D | D1 | D2 | f | b | Z-Φd | H1 | Направи | ㎏ |
| 15 | 130 | 95 | 65 | 45 | 3 | 14 | 4-Φ14 | 95 | 140 | 4 |
| 20 | 140 | 105 | 75 | 55 | 3 | 14 | 4-Φ14 | 98 | 150 | 4.5 |
| 25 | 150 | 115 | 85 | 65 | 3 | 16 | 4-Φ14 | 113 | 150 | 5.5 |
| 32 | 165 | 135 | 100 | 78 | 3 | 18 | 4-Φ18 | 130 | 180 | 7 |
| 40 | 180 | 145 | 110 | 85 | 3 | 18 | 4-Φ18 | 135 | 200 | 9 |
| 50 | 200 | 160 | 125 | 100 | 3.5 | 20 | 4-Φ18 | 140 | 220 | 15 |
| 65 | 220 | 180 | 145 | 120 | 3.5 | 20 | 4-Φ18 | 145 | 280 | 17 |
| 80 | 250 | 195 | 160 | 135 | 4 | 22 | 8-Φ18 | 205 | 320 | 30 |
| 100 | 280 | 215 | 180 | 155 | 4 | 24 | 8-Φ18 | 230 | 380 | 40 |
| 125 | 320 | 245 | 210 | 185 | 4 | 26 | 8-Φ18 | 252 | 500 | 60 |
| 150 | 360 | 280 | 240 | 210 | 4 | 28 | 8-Φ23 | 283 | 600 | 75 |
| 200 | 400 | 335 | 295 | 265 | 5 | 30 | 8-Φ23 | 325 | 750 | 130 |
| 250 | 450 | 405 | 355 | 320 | 5 | 34 | 12-Φ26 | 370 | 900 | 210 |

Популярни тагове: устойчив на корозия сферичен кран с флуорно покритие, Китай устойчив на корозия сферичен кран с флуорно покритие производители, доставчици, фабрика, Репутация на топка клапа, Фланец от въглеродна стомана 10 -инчов клапан, Дългоживтен бален клапан, Бързо отваряне на топка клапан, Бавно затваряне на топка клапан, Монтиран с топка клапан на Trunnion
You Might Also Like
Изпрати запитване


